architektura.net article
txt michał jońca

plansza 1

Prezentowana praca zdobyła I miejsce w konkursie organizowanym w marcu 2004 roku przez Centrum Sztuki Współczesnej w Warszawie na zagospodarowanie / projekt holu wejściowego.

Wnętrze zostało dość dyskretnie przeprojektowane, i na pierwszy rzut oka nic się nie zmieniło. Jedynym charakterystycznym elementem jest panel, a raczej kilka paneli umieszczonych obok siebie, przekazujących na żywo obraz z każdego ważniejszego miejsca w zamku - od galerii głównych po kawiarnię. Jest to o tyle interesujący pomysł, że oprócz przekazywanej informacji na temat aktualnych ekspozycji, panele pokazują działanie samego zamku jako struktury, z którą można wejść w interakcję, próbując np. ułożyć poszczególne części w całość albo śledząc przemieszczające się osoby skaczące pomiędzy ekranami. W ten sposób tworzy się (świadomie bądź nie) własną topografię zamku, którą można zresztą poźniej skonfrontować z rzeczywistością.

O ile zamysł według mnie jest trafny bo funkcjonalny i jednocześnie pojemny, to czystość efektu wizualnego zabijają zaprojektowane w ramach identyfikacji wizualnej zamku opisy, trochę nazbyt ... ordynarne. Może się okazać, że oznaczenia identyfikacyjne przyćmią wszelkie rozwiązania przestrzenne, co może być jakimś pomysłem, ale chyba nie w tym projekcie.

Ciekawa jest, prawie niezauważalna na pierwszy rzut oka, świetlna szczelina pomiędzy ciemną posadzką a ścianami, odcinająca "brudną" prostą płaszczyznę podłogi od czystości ścian i sklepień. Elementami dopełniającymi są meble funkcjonalne i, niestety, kwadrat montażowy unoszący się nad głową.

Oprócz czystości rozwiązania konkursowego warto zwrócić uwagę na odpowiadającą temu czystość i szlachetność podania, co tworzy logiczną całość, pewien kompletny produkt. Dzięki temu projekt ma większą siłę przebicia i jest rozpoznawalny wśród masy innych rozwiązań. Tutaj w zasadzie pierwsza plansza pokazuje wszystko, reszta jedynie dopełnia niektóre szczegóły, bardzo ogólnie, ale chyba wystarczająco na tym etapie opracowania.

Autorami projektu są : Wojciech Kotecki / Marcin Kwietowicz / Albert Salamon

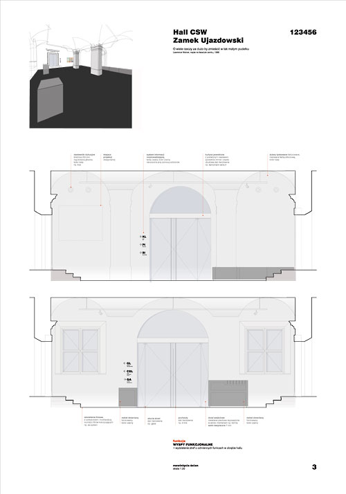
plansza 2

opis autorski :

Hall Centrum Sztuki Współczesnej Zamek Ujazdowski

Motto:
"O wiele rzeczy za dużo by zmieścić w tak małym pudełku"
Lawrence Weiner, napis na fasadzie zamku, 1996

1. Idea:

TRANSMISJA
projekcja obrazu z rozmieszczonych w różnych częściach CSW kamer na monitory w hallu
- przekaz na żywo
- bezpośredniość informacji
- uporządkowanie informacji
- koncentracja informacji

2. kompozycja:

PRZEDMIOTY W PUDEŁKU
swobodnie wstawione obiekty meble o neutralnym stosunku do osi wnętrza (= Osi Stanisławowskiej)

PODŁOGA
platforma bazaltowa odcięta od istniejącej struktury zamku

3. funkcja:

WYSPY FUNKCJONALNE
wydzielenie stref o odmiennych funkcjach

plansza 3

opinia jury :

1 MIEJSCE NAGRODA GŁÓWNA PRACA NUMER 12346

Ocena sądu konkursowego:

Praca ta respektuje układ i proporcje wnętrza uwydatniając ich harmonię w wyniku zastosowania tak specyficznego materiału jak czarne lastriko. Elementy meblowe traktowane są nie jako wartość sama w sobie - zawarte w prostej byle geometrycznej. Ich ustawienie blisko wejścia sprawia, że stosunkowo mała przestrzeń holu jest (z punktu widzenia osoby wchodzącej) widziana w pełnym wymiarze, nie "zaśmieconym" nadmiarem elementów. W ten sposób przestrzeń holu zachowuje swój potencjał miejsca: komunikacji, informacji i zgromadzeń.

Sposób zastosowania przekazu elektronicznego stanowi interesujący punkt wyjścia do stworzenia systemu modułów informacyjnych pozbawionych cech agresywnego informacyjnego zgiełku.

Operując zredukowanymi do minimum środkami, projekt nadał przestrzeni nowych odniesień symbolicznych.

Nagroda za pomysł ponad przestrzennego wykorzystania łączy elektronicznych w przybliżeniu wydarzeń z sal wystawowych do holu wejściowego, za oszczędną formę architektoniczną.

Wyjątkowa oszczędność użytych środków, zostały spełnione wszystkie założenia funkcjonalne. Projekt "z szacunkiem" odnosi się do istniejącej architektury, nie burzy podziałów i proporcji wnętrza. Skromność, oszczędność użytych środków doskonale koresponduje z przeznaczeniem wnętrza (wyciszenie wprowadzenie w "inny" świat jednocześnie podnosi rangę miejsca zgodnie z zasadą "less is more". Rozważne wykorzystanie elektroniki, która stanowi element czytelnego systemu informacji rozprowadzającej a jednocześnie pokazującej "życie" wnętrz CSW. Łatwość utrzymania w czystości i przeprowadzenia koniecznych czasowych remontów.

Za powściągliwe podejście do zastanych form architektonicznych wnętrza i uwypuklenie ich walorów, za subtelne a jednocześnie zdecydowane użycie materiałów oraz zaproponowanie oszczędnej i klarownej formy informacji wizualnej. Za propozycję mobilnych i oszczędnych w formie stanowisk informacji.

plansza 4