architektura.net presentation / txt + img by EEA***

 
 
click at images to enlarge (big!)

 
 
The site for the new Royal Dutch Embassy in Poland is situated near the Lazienki Park in Warsaw. The project, commissioned by the Dutch Ministry of Foreign Affairs, sought a design for the combined chancery and ambassador's residence that reflected the Dutch influential tradition of transparency and openness.
Warsaw
New chancery and residence
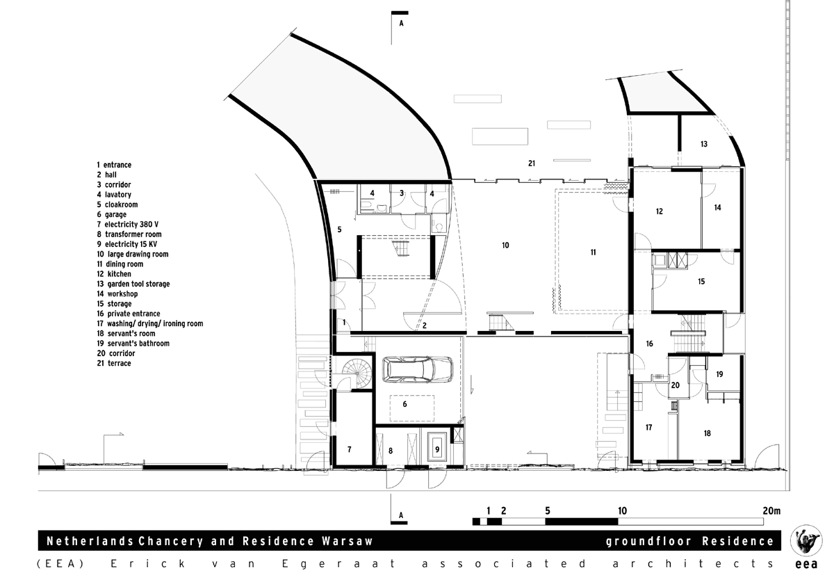
The site is situated to the north of the park, an area with a residential and rural character that also has other embassy buildings. The green environment is an important asset for the project, however walls individually enclose the other embassies, threatening the open and leisurely atmosphere of the park. There are a few historic buildings in the surrounding area including a building by a Dutch Baroque architect, Tylman van Gameren, who had great influence on Polish architecture during the 17th century. The proposed design is inspired by the Baroque though modest style of van Gameren and retains most of the existing trees, promoting the park quality and adding value to the green landscape. The chancery and the residence are related to each other and their surroundings in an individual way. The chancery, following the objectives of the brief, is designed in a light and translucent manner to reflect the scenery whilst the residence is located as a villa in the park, with the stone appearance reinforcing the concept of an independent element in the environment. Between the two buildings a public courtyard is created with views out of the surrounding landscape. The façade of the complex also compises a gate with an organic design that is both part of the buildings and an independent element. To the street side the gate, together with a glazed screen , creates a second layer to the chancery. The connection between this "open" outer wall and the building's external wall is made by loggias. These closed elements, made of natural stone, are a spatial transition between the street and the new embassy. As a result the Dutch embassy is not only part of, but also enclosed by its surroundings. The integration of the surrounding area into the design not only emphasises the individuality of its components but also expresses their coherence, creating a complex that clearly radiates the Dutch tradition of transparency and openness.
Royal Dutch Embassy in Warsaw
New chancellery and residency
Client : Ministry of Foreign Affairs, Real Estate Abroad Service, Den Haag
Gross floor area : 3.500 m2 (chancery 2750 m2, residence 750 m2)
Start design : 1999
Realization : 2003
Project architects: Erick van Egeraat, Monica Adams, Massimo Bertolano, Michiel Raaphorst
Project team: Bert van der Schaft, Paul Blonk, Luc Reyn, Erik Workel, Jan Bouchal, Aude de Broissia, Ilse Castermans, Peter Földi, Barbara Frei, Katrin Grubert, Julia Hausmann, Stephan Jentsch, Michel van de Kar, Agnieszka Krawczyk, Ruben Kuipers
Contributors: Alejandra Guerra Navarro, Akos Ginder Alasdair Graham, Bronwen Kerr Gerwen van der Linden, Nuno Pais, Henrike Patt, Anita Stallinger
Renderings: Peter Heavens, Steven Simons
*** all text and images by (EEA) Erick van Egeraat associated architects.
|
|